Bay Ridge Real Estate

Dyker Heights, NY 11228

[Dyker Heights Real Estate, listing number 7092025]
[PHOTO]
[PHOTO]
[PHOTO]
[PHOTO]
Description: 7092025
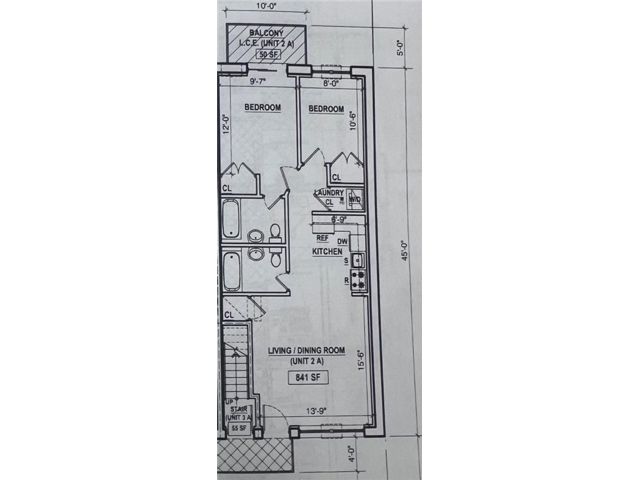
   TAX ABATEMENT AND C of O READY !!!!Nestled in the heart of Dyker Heights, this brand-new 2nd-floor condo embodies contemporary living, complete with a 15-year tax abatement. The unit offers a spacious, sunlit living and dining area featuring hardwood and tile flooring. The kitchen is pristine and equipped with stainless steel appliances, while the condo itself boasts two generously sized bedrooms. The master bedroom includes FULL bath and access to a rear terrace. Additional amenities include ample closet space, a laundry area with washer/dryer hookups, and a storage room. The building, constructed with reinforced concrete, features high-hat lighting, baseboard heating, and separate entrances for each unit. It includes a front yard, a private driveway, and a rear parking spot available for an additional $25,000. The residence is equipped with new hot water and heating systems, separate utility meters, and sprinkler systems. This prime location provides easy access to the vibrant amenities of 13th Ave., nearby parks, the Dyker Heights Golf Course, playgrounds, and top-rated schools. Transportation is convenient with local and express bus routes nearby, minutes away to the 18th Ave. D Train station, and quick access to the Belt Parkway and Verrazano Bridge. Detailed information on square footage, maintenance fees, annual taxes, and tax abatement specifics is available upon request.

Details:
   Families: 8
   Bedrooms: 2
   Bathrooms: 2
   Property Type: Condominium
   Style: Condominium
   Rooms: 4
   Built: 2024

Financials:
   Price: $724,999
   Maint/Cc: $172

 

Berkshire Hathaway HomeServices Fillmore
Joseph Devito
Direct: (718)377-6161
Office: 718-377-6161

Contact
 

Berkshire Hathaway HomeServices Fillmore
Ann Macbride
Lic. Real Estate Salesperson
Direct: (718)377-6161
Office: 718-377-6161

View Bio      Contact